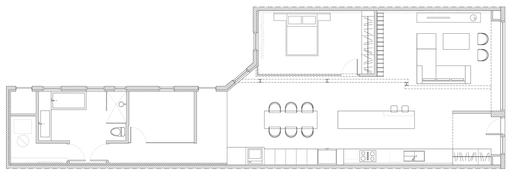
La idea principal de este diseño se basa en la cocina como punto central del espacio y elemento predominante al entrar a la vivienda.
La pared diáfana parece no querer delatar el objetivo de esta parte de la casa y se ha dejado el ladrillo al descubierto, como recuerdo del pasado arquitectónico del edificio.
Es un proyecto de Anne Sophie Goneau en Montreal, Quebec, Canadá, en un apartamento de unos 100 m2 de superficie.
Por un lado, la cocina carece de color. Los muebles en acabado brillo, están comprendidos a lo largo de una superficie de trabajo de cuarzo, con el fregadero, escurridor y grifo, lavavajillas integrable, placa con extractor y horno debajo, todo en negro.
A continuación, una lineal zona de columnas con el frigorífico de dos puertas verticales, despensas y los últimos armarios de una mayor profundidad para poder albergar a la lavadora y secadora y artículos de limpieza.
Enfrente, una isla totalmente blanca con armarios de almacenamiento y una pequeña barra, hace un contraste radical necesario y ofrece luminosidad al ambiente, que termina con una amplia mesa de comedor.
Vía Dezeen











