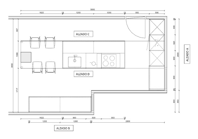
En una área como esta, en lugar de pensar en una distribución angular y una mesa en el centro de la estancia, que hubiera sido lo más convencional, se ha optado por un espacio optimizado a partir de un diseño con isla que proporciona una funcionalidad inigualable.
En este caso, la isla es multifuncional y el centro de la acción, ya que permite cocinar, lavar, preparar y comer, relegando los demás sectores, aunque importantes, a funciones un poco menos activas.
En ella se encuentran tanto la placa de inducción como el fregadero Blanco de acero inoxidable bajo encimera y está compuesta por grandes caceroleros y cajones por ambas caras, cubos para residuos y lavavajillas integrado.
La encimera porcelánica se extiende a lo largo hasta abrazar la columna existente, formando una práctica mesa para desayunos y comidas rápidas.
No puede faltar un indispensable sistema de extracción de humos, como la campana de techo Pando y la iluminación que completan las dos decorativas lámparas colgantes blancas.
Situados perpendicularmente están los hornos, frigorífico, despensa y un módulo de cajones bajo la ventana que completa la pequeña pared, mientras que detrás de la zona de cocción, se ha previsto un área de trabajo adicional o para preparar los desayunos.
Por otro lado, la zona de circulación alrededor del elemento central, al ocupar un ancho mínimo recomendable, hace que se pueda aprovechar al máximo el espacio de almacenamiento y que se genere un flujo de trabajo confortable y de cómodos movimientos.
Es un estupendo proyecto de Santos Maragall, con mobiliario de los modelos laminados Intra Gris Arena y Seda Gris Arena de Santos, sin tirador, encimera Neolith Textil White y electrodomésticos Bosch.
Armonía y practicidad.





















2 Comments
Juan Torres
Yo sin duda alguna remodelaría mi cocina así tal cual, los cambios que haría son muy mínimos.
Me gustaria agregar un horno de ultima generacion, un bonito congelador y otro tipo de maquinaria auxiliar que me ayude a tener una cocina muy actualizada tecnologicamente hablando.
Pero el color de las paredes y el piso me gustaria dejarlos igual que las imágenes publicadas.
Jose Jaspe
Diossss estan hermosas