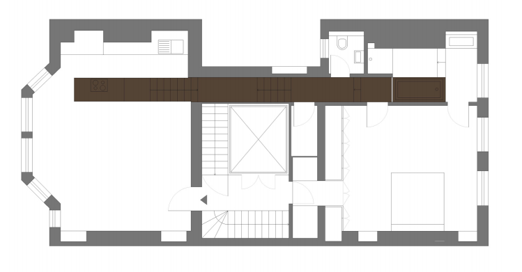
La superficie de trabajo de esta cocina, se extiende a lo largo de la vivienda, convirtiéndose en escaleras y terminando en el contorno de la bañera.
El impacto visual es extraordinario por su originalidad, donde las accidentadas superficies de madera de nogal, forman un elemento decorativo fundamental en el ambiente.
Por su parte, los muebles de cocina pasan casi inadvertidos por su color blanco y sin tiradores, que les permiten mimetizarse con las paredes. Singular.
Vía Themodernhouse






